Минск, Правда газеты просп., д.20/А-А, коммерческая

Правда газеты просп., 20/А/А
Московский район (г.Минск)
411 185 руб. (138 000 y.e.)
ООО "7 этажей", УНП 192361483, лицензия № 02240/283 от 14.11.2014г., договор на оказание риэлтерских услуг 1923/3 от 28.10.21г. от 2021-10-28

Описание

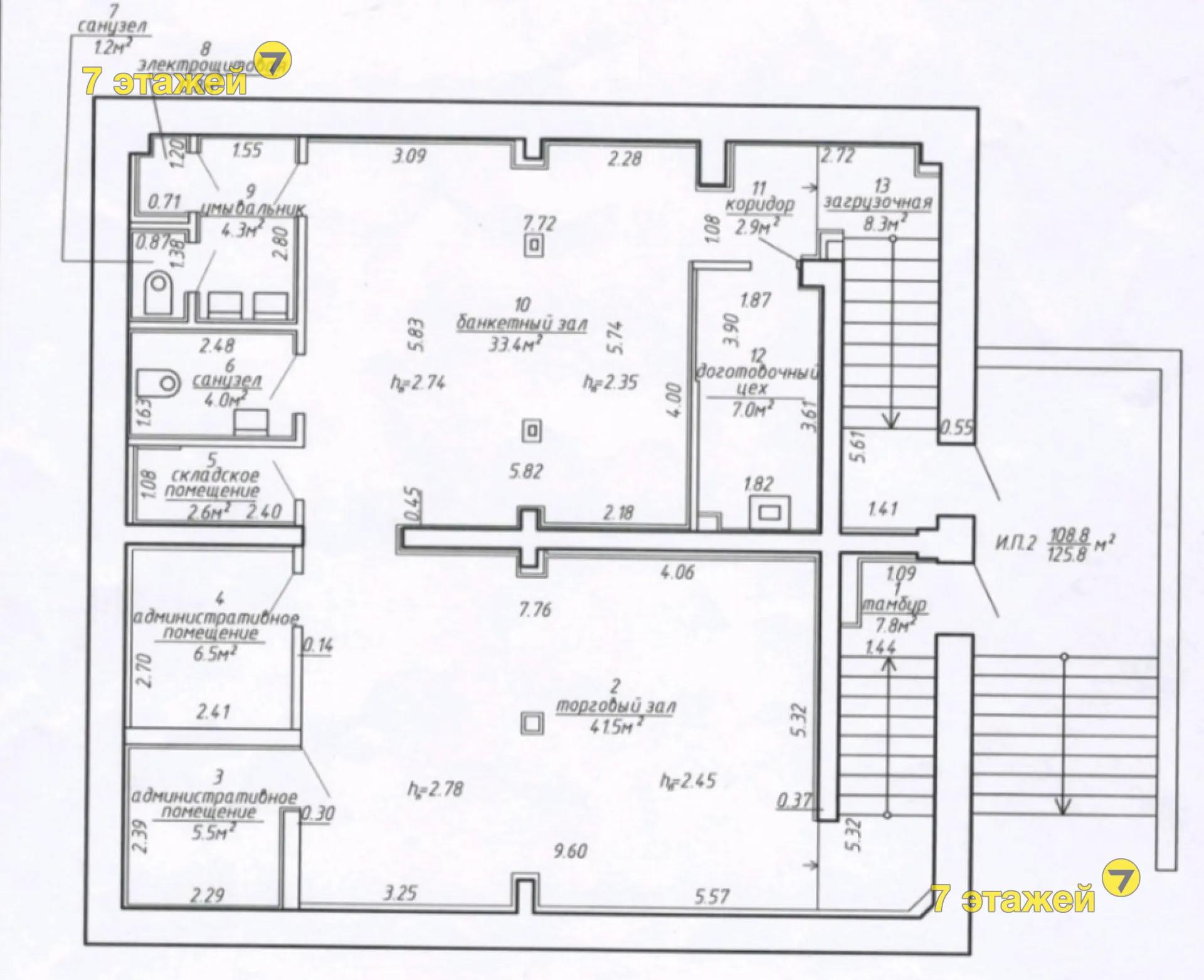
Помещение 125,8м.кв. ст.м. Петровщина, Московский р-н, г. Минск: Правда газеты просп., д.20А

- Не жилое здание.

- Многофункциональное назначение.

- Вентиляция приточно-вытяжная.

- 30 кВТ , автомат стоит на 40 (отдельным проектом можно сделать больше).

- Успешно используемое помещение ВСЕГДА.

- Любой режим работы.

- Продает физ. лицо.

  • ИНВЕСТИЦИЯ В КАЧЕСТВЕ АРЕНДНОГО БИЗНЕСА! 
  • БЫСТРАЯ (РАСЧЁТНАЯ) ОКУПАЕМОСТЬ!
  • НЕ ТРЕБУЕТ ДОПОЛНИТЕЛЬНЫХ ВЛОЖЕНИЙ!

В данный момент используется  двумя арендаторами: 12 долл. за 1 м2.

 

1.Ночной бар

- с 18:00 открыты.

- отдельный вход (слева)

- вместимость до 40 человек,

2. Кейтеринг

- отдельный вход (справа)

- активная пешеходная зона

- 500м. ст.м. Петровщина

- банки, почта, магазины

- парковка

- все коммуникации

- электроснабжение 380В

- оборудование

- кухня

- 2 санузла

 

Звоните! Ответим на интересующие вопросы!

Дополнительные детали

  • Сведения о Чате НЕ ИСПОЛЬЗУЕТ ЧАТЫ
  • Вид объекта КАФЕ
  • Пл. пом. мин. от: 125,8 КВ.М.
  • Пл. пом. макс. до: 125,8 КВ.М.
  • Выгружать цену м2 на realt ЕСТЬ
  • Кол. помещений от: 2
  • Кол. помещений до: 9
  • Тип объекта, дополнительно можно указать до 3 видов КАФЕ, БАР, СФЕРА УСЛУГ
  • Этаж: 1
  • Этажность: 3
  • Высота потолков: 2,78 М.
  • Материал стен: КИРПИЧНЫЙ
  • Год постройки 1983 Г.
  • Состояние дома: ХОРОШИЙ РЕМОНТ
  • Оборудование ЕСТЬ
  • Естеств. освещение: НЕТ
  • Электроснабжение: 380В
  • Отопление: ЕСТЬ
  • Газоснабжение: ЕСТЬ
  • Вода: ХОЛОДНАЯ
  • Сан/узел: 2 САНУЗЛА
  • Кол-во телефонов: 1 ТЕЛЕФОН
  • Юридический адрес: ЕСТЬ
  • НДС: НДС НЕТ (0%)
  • Дополнительная информация КОНДИЦИОНЕР, ОТДЕЛЬНЫЙ ВХОД, ОЖИВЛЕННОЕ МЕСТО, ПАРКОВКА, ПОДЪЕЗДНЫЕ ПУТИ, СИГНАЛИЗАЦИЯ, ВИДЕОНАБЛЮДЕНИЕ, КОМПЬЮТЕРНАЯ СЕТЬ, СКОРОСТНОЙ ИНТЕРНЕТ, СРОЧНО, ГОТОВЫЙ БИЗНЕС

Карта

загрузка карты...

Поделиться

Для улучшения работы сайта и его взаимодействия с посетителем мы используем файлы cookie Продолжая работу с сайтом, Вы разрешаете использование cookie-файлов. Подробнее...
Персональные настройки Cookie