Минск, Жилуновича ул., д.2, коммерческая

Жилуновича ул., 2
Заводской район (г.Минск)
1 206 738 руб. (405 000 y.e.)
ООО "7 этажей", УНП 192361483, лицензия № 02240/283 от 14.11.2014г., договор на оказание риэлтерских услуг 110/3 от 2020-12-21

Описание

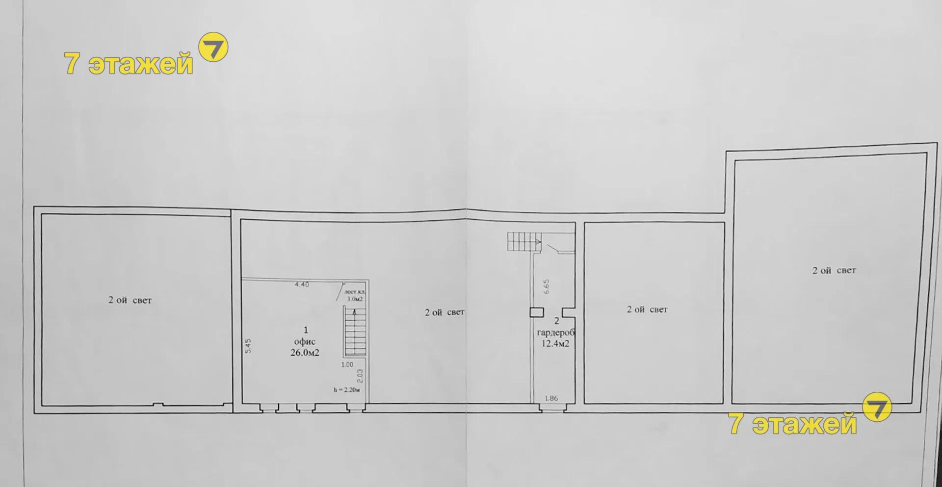
Продается здание станции технического обслуживания (СТО) под разные виды услуг и отличное ведение своего прибыльного бизнеса по адресу Жилуновича 2.

Общая площадь 350,3 кв.м. высота потолков 4.20. 

Собственное отопление на отработанном масле (около 100 BYN в месяц). Коммунальные (вода и электроэнергия) оплачиваются по тарифам юр. лиц.

В данный момент работают постоянные арендаторы (7 евро за 1 м2).

Продает ИП без НДС.

Не высокий налог на недвижимость и землю.

Оборудование полностью арендаторов. Имеется отдельное помещение с ямой.

Удобный выезд к центру, а также на МКАД.

Полное юридическое сопровождение сделки гарантируем!

Торг!

Дополнительные детали

  • Сведения о Чате НЕ ИСПОЛЬЗУЕТ ЧАТЫ
  • Вид объекта СТО
  • Пл. пом. мин. от: 350.3 КВ.М.
  • Пл. пом. макс. до: 350.3 КВ.М.
  • Кол. помещений от: 6
  • Кол. помещений до: 6
  • Тип объекта, дополнительно можно указать до 3 видов ПРОИЗВОДСТВО, АВТОБИЗНЕС, СТО
  • Этаж: 1
  • Этажность: 2
  • Высота потолков: 4.20 М.
  • Материал стен: КИРПИЧНЫЙ
  • Год постройки 1996 Г.
  • Состояние дома: УДОВЛЕТВОРИТЕЛЬНЫЙ РЕМОНТ
  • Оборудование НЕТ
  • Естеств. освещение: ЕСТЬ
  • Электроснабжение: ЕСТЬ
  • Отопление: ЕСТЬ
  • Газоснабжение: НЕТ
  • Вода: ЕСТЬ
  • Сан/узел: ЕСТЬ
  • Юридический адрес: ЕСТЬ
  • НДС: НДС НЕТ (0%)
  • Дополнительная информация КЛАСС C, ОТДЕЛЬНЫЙ ВХОД, ОЖИВЛЕННОЕ МЕСТО, ПАРКОВКА, ПОДЪЕЗДНЫЕ ПУТИ, РАМПА, ВИДЕОНАБЛЮДЕНИЕ, СРОЧНО, ГОТОВЫЙ БИЗНЕС

Карта

загрузка карты...

Поделиться

Для улучшения работы сайта и его взаимодействия с посетителем мы используем файлы cookie Продолжая работу с сайтом, Вы разрешаете использование cookie-файлов. Подробнее...
Персональные настройки Cookie