Березино, Зеленая ул., д.22, коммерческая

Зеленая ул., 22
Березино, Березинский район
293 981 руб. (99 000 y.e.)
ООО "7 этажей", УНП 192361483, лицензия № 02240/283 от 14.11.2014г., договор на оказание риэлтерских услуг 884/3 от 2025-06-19

Описание

Радикальное снижение цены! ????

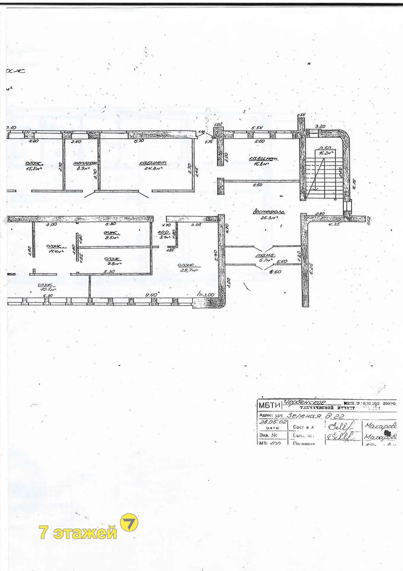
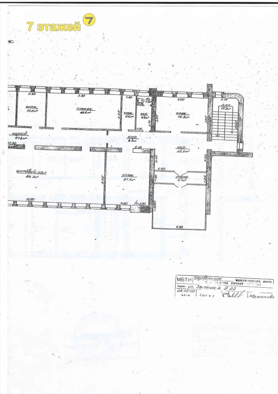
Продается уникальное административное здание общей площадью 1670.2 м² в г. Березино, всего в 94 км от МКАД в направлении Могилева!

Основные характеристики:

  • Форма собственности: ЧАСТНАЯ
  • Назначение: нежилое (служебно-бытовой корпус)
  • Площадка: 33 сотки, огороженная забором
  • Подъезд: удобный асфальтированный

Здание 1988 года постройки требует ремонта и реконструкции по вашему вкусу.  Основные конструктивные элементы хорошем состоянии: кирпичные стены утеплены и оштукатурены.

Крыша — металлочерепица. Электричество подключается без проблем.

Удобства:

  • Центральные: вода и канализация
  • Проект газификации в наличии
  • Возможность трансформации под разные виды бизнеса: торгово-развлекательный центр, офисы и другое!

Преимущества:

Находится на въезде в город  с интенсивным автотрафиком, рядом с производственной базой "Белавтодор". Город с населением 12 тыс. чел. и развивающейся промышленностью:

Березинский сыродельный завод, «Минск Кристалл», и другие!

???? Это ваш шанс на удачное вложение! ????

???? Звоните, записывайтесь на просмотр и задавайте вопросы! Грандиозный торг для реальных покупателей.

Рассматриваем обмен на квартиру в Минске, дом с участком не менее 10 соток не более 20 км от МКАД (участок-не СТ, со всеми коммуникациями)

Дополнительные детали

  • Сведения о Чате НЕ ИСПОЛЬЗУЕТ ЧАТЫ
  • Вид объекта ПОМЕЩЕНИЕ
  • Пл. пом. мин. от: 1670.2 КВ.М.
  • Пл. пом. макс. до: 1670.2 КВ.М.
  • Выгружать цену м2 на realt ЕСТЬ
  • Кол. помещений от: 1
  • Кол. помещений до: 59
  • Тип объекта, дополнительно можно указать до 3 видов ПОМЕЩЕНИЕ, СФЕРА УСЛУГ, ЗДАНИЕ
  • Этаж: 3
  • Этажность: 3
  • Высота потолков: 3 М.
  • Материал стен: КИРПИЧНЫЙ
  • Год постройки 1988 Г.
  • Состояние дома: БЕЗ ОТДЕЛКИ
  • Оборудование НЕТ
  • Естеств. освещение: ЕСТЬ
  • Электроснабжение: НЕТ
  • Отопление: НЕТ
  • Газоснабжение: НЕТ
  • Вода: ХОЛОДНАЯ
  • Сан/узел: ЕСТЬ
  • Кол-во телефонов: НЕТ
  • Юридический адрес: ЕСТЬ
  • НДС: НДС НЕТ (0%)
  • Дополнительная информация КЛАСС C, ПОДЪЕЗДНЫЕ ПУТИ, СРОЧНО

Видео

Карта

загрузка карты...

Поделиться

Для улучшения работы сайта и его взаимодействия с посетителем мы используем файлы cookie Продолжая работу с сайтом, Вы разрешаете использование cookie-файлов. Подробнее...
Персональные настройки Cookie