Минск, Щорса ул., д.1-А, коммерческая

Щорса ул., 1/А
Московский район (г.Минск)
762 122 руб. (255 780 y.e.)
ООО "7 этажей", УНП 192361483, лицензия № 02240/283 от 14.11.2014г., договор на оказание риэлтерских услуг 1001/3 от 2024-04-26

Описание

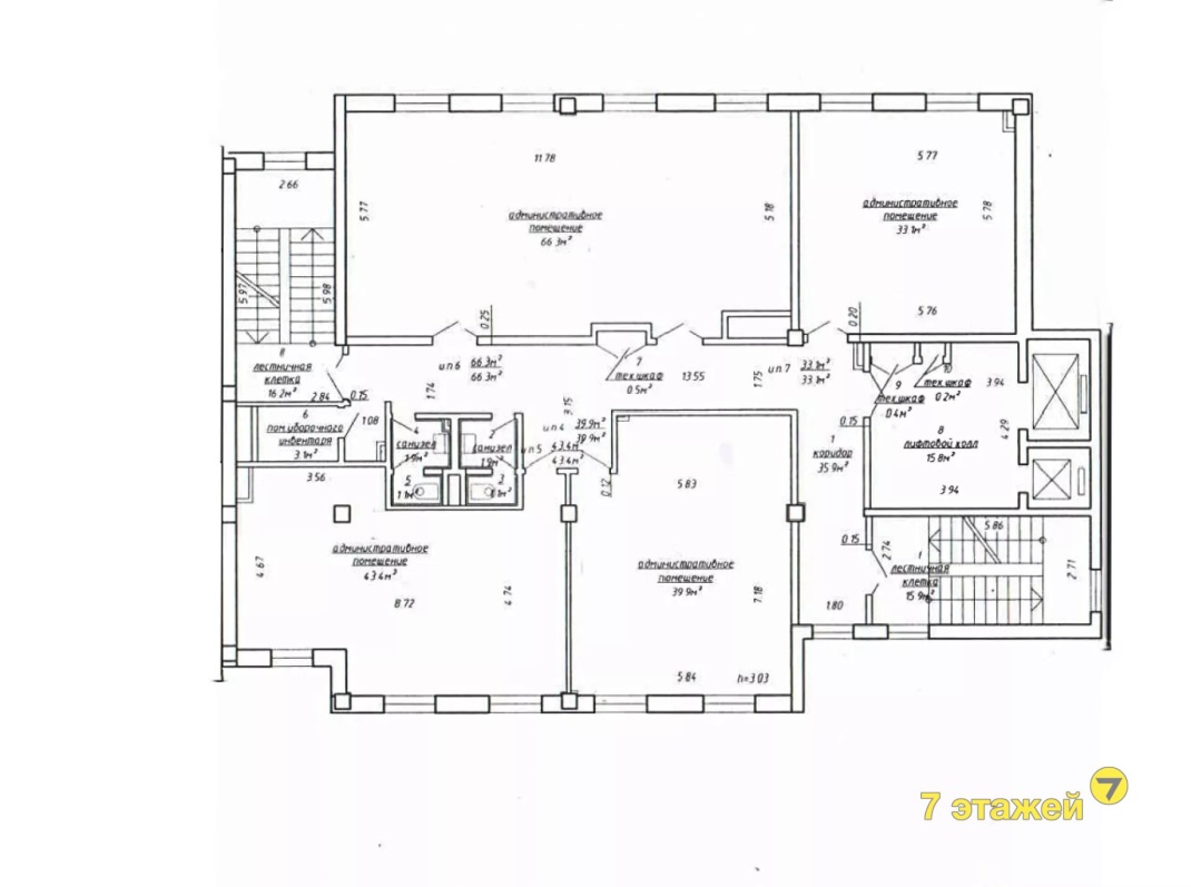
Продажа административных помещение по адресу : г. Минск, ул. Щорса, 1А. В здании в апарт-отеля "Комфорт".

При покупке 4 помещений в пользовании полностью второй этаж. 2 сан узла, лифтовая, круглосуточный доступ, кондиционер.

Сейчас используется под офисы. 

В стоимость включен НДС. Территория с парковочными местами.

Есть охрана и видеонаблюдение. До метро "Грушевка" 500 метров.

Осталось только помещение 33 м2. - 49500 уе

Полностью меблированы офисы. 

Звоните ответим на интересующие вопросы.

Дополнительные детали

  • Сведения о Чате НЕ ИСПОЛЬЗУЕТ ЧАТЫ
  • Вид объекта ПОМЕЩЕНИЕ
  • Пл. пом. мин. от: 182,7 КВ.М.
  • Пл. пом. макс. до: 182,7 КВ.М.
  • Выгружать цену м2 на realt ЕСТЬ
  • Кол. помещений от: 4
  • Тип объекта, дополнительно можно указать до 3 видов ОФИС, ПОМЕЩЕНИЕ, СФЕРА УСЛУГ
  • Этаж: 2
  • Этажность: 8
  • Высота потолков: 3,03 М.
  • Материал стен: МОНОЛИТНЫЙ
  • Год постройки 2012 Г.
  • Состояние дома: ОТЛИЧНЫЙ РЕМОНТ
  • Оборудование ЕСТЬ
  • Естеств. освещение: ЕСТЬ
  • Электроснабжение: ЕСТЬ
  • Отопление: ЕСТЬ
  • Газоснабжение: НЕТ
  • Вода: ЕСТЬ
  • Сан/узел: ЕСТЬ
  • Кол-во телефонов: 4 ТЕЛЕФОНА
  • Юридический адрес: ЕСТЬ
  • НДС: НДС ВКЛЮЧЕН
  • Дополнительная информация КОНДИЦИОНЕР, КЛАСС B, НЕЗАВЕРШЕННОЕ СТРОИТЕЛЬСТВО, ОТДЕЛЬНЫЙ ВХОД, ПАРКОВКА, ПОДЪЕЗДНЫЕ ПУТИ, КОМПЬЮТЕРНАЯ СЕТЬ

Карта

загрузка карты...

Поделиться

Для улучшения работы сайта и его взаимодействия с посетителем мы используем файлы cookie Продолжая работу с сайтом, Вы разрешаете использование cookie-файлов. Подробнее...
Персональные настройки Cookie