Головки, Красивая ул.

Красивая ул.
Головки, Минский район
264 546 руб. (90 000 y.e., 477 м 2)
ООО "7 этажей", УНП 192361483, лицензия № 02240/283 от 14.11.2014г., договор на оказание риэлтерских услуг 2211/3 от 2023-10-03

Описание

Продается дом, Минский р-н, Хатежинский с/с, д. Головки, 5.3 км от МКАД. Красивое и спокойное место недалеко от Минска (престижное направление). Дом не достроен. Готовность дома - 75%. 

Современный дом под чистовую отделку в живописном месте. В 2-х минутах езды есть оптовый рынок, большой коттеджный посёлок Хотежино.  Дом расположен на участке 20 соток

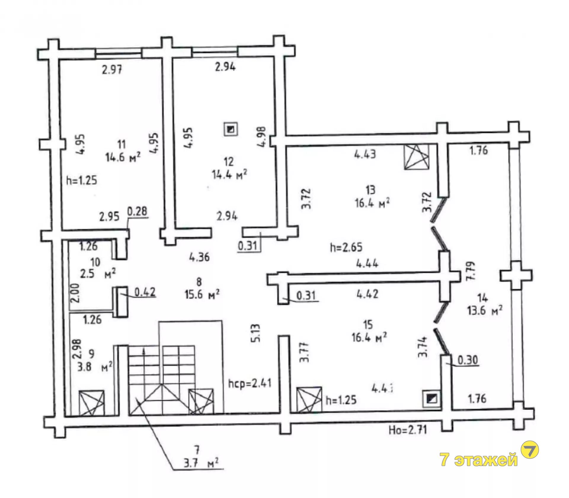
Общая площадь дома - 188,8 кв.м.

Описание: дом находится в жилой коттеджной застройке, двухуровневый бревенчатый 2016 г.п., сруб d 30-32 см.

Первый этаж - гостиная с кухней, санузел, душевая и парилка. Второй этаж - коридор, 4 жилые комнаты с панорамными окнами, балкон. 

Фундамент - сваи железные, стены - бревно, перегородки - кирпич, полы - бетон, окна - стеклопакеты деревянные,  крыша - натуральная черепица

Камин в гостиной, французкие окна, балкон, подведено электричество, вода - центральная, газ рядом по улице. Есть банный комплекс. 

Целевое назначение - земельный участок для ведения личного подсобного хозяйства. 

 

Инфраструктура.

• Магазины, рынок.

• Автобусная остановка, маршрутка.

 

Дополнительные детали

  • направление ГРОДНЕНСКОЕ
  • Расстояние от МКАД 5
  • Площадь участка 20
  • Общая площадь постройки 188,8
  • Количество уровней 2
  • Материал крыши ЧЕРЕПИЦА
  • Электричество ЕСТЬ
  • Водоснабжение ЦЕНТРАЛЬНОЕ
  • Канализация НЕТ
  • Отопление ТВЕРДОТОПЛИВНОЕ
  • Газоснобжение НЕТ
  • Год постройки 2016
  • Процент готовности 75
  • Сведения о Чате TELEGRAMM

Карта

загрузка карты...

Поделиться

Для улучшения работы сайта и его взаимодействия с посетителем мы используем файлы cookie Продолжая работу с сайтом, Вы разрешаете использование cookie-файлов. Подробнее...
Персональные настройки Cookie