Минск, Одесская ул., д.20/Б, 2-ком. квартира, 11-этаж

Одесская ул., 20/Б
Заводской район (г.Минск)
336 263 руб. (118 800 y.e., 1 980 м 2)
ООО "7 этажей", УНП 192361483, лицензия № 02240/283 от 14.11.2014г., договор на оказание риэлтерских услуг 142/3 от 2026-02-27

Описание

Продается светлая 2-комнатная квартира в уютном 19-этажном доме рядом с метро Автозаводская.

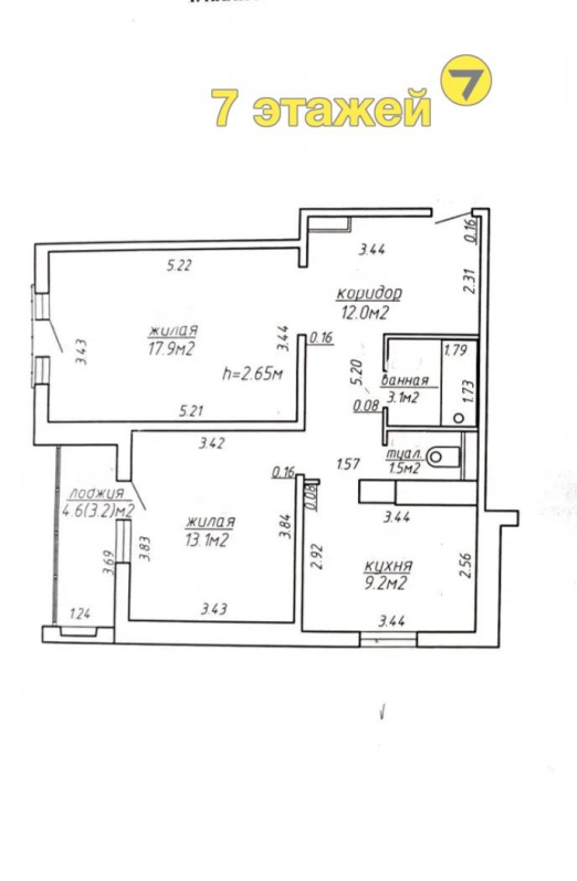
Площадь по СНБ 60/31/9.2

Дом 2011 года постройки. В 7 минутах ходьбы метро Автозаводская.

Квартира с аккуратным ремонтом - заезжай и живи!

Очень удобная планировка - все раздельно, в гостиной панорамный французский балкон.

Отличное транспортное сообщение в любую точку города. Тихий, спокойный район.

Развитая инфраструктура в шаговой доступности:

  • гимназия №25;
  • две школы;
  • детский сад №40;
  • Минский институт управления;
  • магазины;
  • аптеки;
  • другие социально значимые объекты.

Окажем помощь в продаже Вашей недвижимости для приобретения этой квартиры, при необходимости поможем с кредитом.
Приходите, смотрите, покупайте! 

Дополнительные детали

  • район ЗАВОДСКОЙ
  • количество комнат 2
  • Комнат изолированных 2
  • Этаж 11
  • Всего этажей 19
  • Тип здания ПАНЕЛЬНЫЙ
  • Общая, м.кв. 60
  • Жилая, м.кв. 31
  • Кухня, м.кв. 9.2
  • Санузел РАЗДЕЛЬНЫЙ
  • Покрытие пола ЛИНОЛЕУМ
  • Балкон/лоджия ЛОДЖИЯ ЗАСТЕКЛЕНА
  • Телефон ЕСТЬ
  • Год постройки 2011
  • Сведения о Чате НЕ ИСПОЛЬЗУЕТ ЧАТЫ
  • Вид из окон: ВО ДВОР
  • Лифт ДА

Карта

загрузка карты...

Поделиться

Для улучшения работы сайта и его взаимодействия с посетителем мы используем файлы cookie Продолжая работу с сайтом, Вы разрешаете использование cookie-файлов. Подробнее...
Персональные настройки Cookie