Минск, Белградская ул., д.9, 2-ком. квартира, 2-этаж

Белградская ул., 9
Октябрьский район (г.Минск)
327 756 руб. (110 000 y.e., 2 467 м 2)
ООО "7 этажей", УНП 192361483, лицензия № 02240/283 от 14.11.2014г., договор на оказание риэлтерских услуг 1366/3 от 2025-10-28

Описание

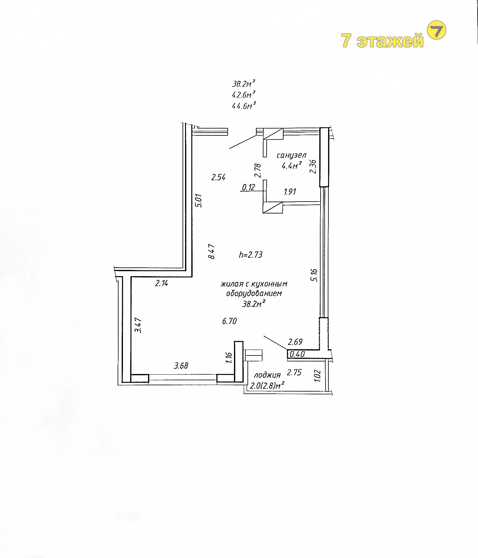
Евродвушка со свежим ремонтом и грамотным зонированием (2 отдельные комнаты) по ул. Белградская, 9 дом "Стокгольм"

Это не просто квартира, а продуманное до мелочей пространство для комфортной жизни.
· Рациональная планировка: Это именно евродвушка — просторная изолированная гостиная-спальня (которая превращается в отдельную комнату) и уютная спальня (детская). Идеальное зонирование для семьи или пары.
· Качественная отделка: Высокие потолки  2,73 м, ламинат 33 класса, утепленная лоджия с рабочей зоной, современная кухня с техникой, зонирование кухни-гостинной.
· Новостройка: Дом сдан в декабре 2021 года. Все коммуникации новые, установлены импортные лифты OTIS. Соседи уже успели сделать ремонты и не мешают наслаждаться жизнью.
· Благоустроенная территория: Ухоженный двор с игровыми площадками для разных возрастов.

Идеальное расположение в шаговой доступности:

· Всего 8 минут пешком до станции метро «Аэродромная».
· Детский сад прямо во дворе.
· В 10 минутах ходьбы — крупнейший ТЦ «Avia Mall» (более 500 магазинов и 35 ресторанов).
· Вся инфраструктура под рукой: аптеки, кафе, салоны красоты, пункты выдачи заказов.

Детали:
· Общая площадь (по СНБ): 44,6 м² · Общая площадь: 42,6 м²
· Этаж: 2/25
· Санузел совмещенный, установлен бойлер.

Для кого эта квартира?

Идеальный выбор для тех, кто ценит современные планировки и не хочет тратить время и силы на ремонт. Вы получаете ключи от полностью готовой к жизни квартиры в одном из лучших комплексов района.

Звоните, чтобы назначить просмотр и оценить все преимущества квартиры лично!

P.S. (Дополнительная услуга для покупателей):  «Проведем экспертизу и поможем продать вашу текущую недвижимость для комфортного проведения взаиморасчетов».

Дополнительные детали

  • район ОКТЯБРЬСКИЙ
  • количество комнат 2
  • Комнат изолированных 1
  • Этаж 2
  • Всего этажей 25
  • Тип здания МОНОЛИТНЫЙ
  • Общая, м.кв. 44.6
  • Жилая, м.кв. 38,2
  • Санузел СОВМЕЩЕННЫЙ
  • Покрытие пола ЛАМИНАТ
  • Балкон/лоджия ЛОДЖИЯ ЗАСТЕКЛЕНА
  • Телефон ЕСТЬ
  • Год постройки 2021
  • Сведения о Чате TELEGRAMM
  • Вид из окон: НА УЛИЦУ
  • Наличие пропускной системы ДА
  • Лифт ДА
  • Мусоропровод НЕТ
  • Парковка УЛИЧНАЯ

Карта

загрузка карты...

Поделиться

Для улучшения работы сайта и его взаимодействия с посетителем мы используем файлы cookie Продолжая работу с сайтом, Вы разрешаете использование cookie-файлов. Подробнее...
Персональные настройки Cookie